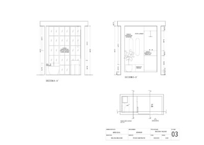
BAÑO IDEAL

Proyecto de diseño con los materiales vistos en clase: Propuesta de Baño ideal a partir de una planta otorgada por el profesor.

Trabaje sobre un concepto minimalista y brutalista, proponiendo como principal material el hormigon, creando un efecto de amplitud utilizando puertas de vidrio con perfiles de aluminio. 
También empleo líneas curvas para darle dinamismo al espacio y proponiendo como contraste el revestimiento de las paredes con Mosaicos de la marca Todo barro en tonos aguamarina y pizarra y rojiza.
La grifería elegida fueron los diseños de la marca Antonio Luppi que se vuelven protagonistas del espacio.
La luminaria minimalista ideal para darle más protagonismo al mobiliario y griferia de diseño.