SINFONÍA

«Arquitectura

Que

Suena«

Espacios orgánicos para vivir en armonía

 Este proyecto explora el diseño de una vivienda donde la música y la naturaleza están en sintonía. Su diseño parte de una caja de música con bailarina traducida en formas orgánicas, materiales naturales.

La vivienda combina calidez y fluidez con toques industriales, integrando espacios multifuncionales y elementos acústicos, visuales y sensoriales. Todo el diseño gira en torno a la armonía entre naturaleza, movimiento y arquitectura.

DISEÑO HISTÓRICO

«El

Azul

Como

Hilo

Conductor»

Para este espacio se parte desde una visión al pasado para su diseño, tomando como inspiración la Puerta de Ishtar para imaginar una biblioteca en el corazón de la ciudad.

Un espacio que conecta lo que fuimos y lo que somos a través del azul, creando un refugio para las ideas y la memoria. Aquí, cada rincón invita a descubrir, a leer y a recordar de dónde venimos.

FLUJO ORGÁNICO

«Diseño

En

Movimiento«

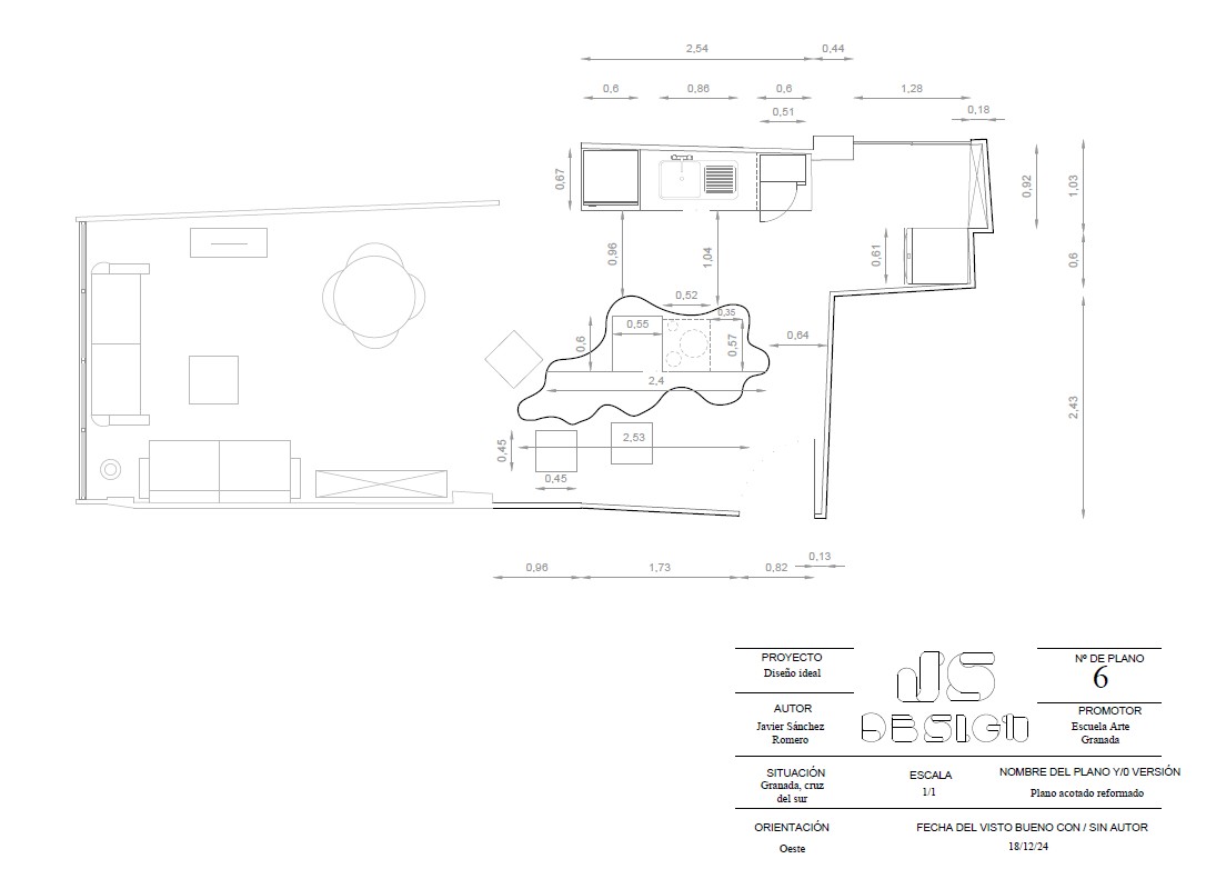
La pieza clave del diseño es la piedra sinterizada con sus veteado característico

 En este proyecto se diseñó una isla de grandes dimensiones con formas orgánicas, acompañada de un mueble de cocina central, que se eleva hasta el techo, integrando electrodomésticos y fregadero. Para acentuar el movimiento del conjunto, se utilizó una piedra sinterizada con vetas marcadas, reforzando así el flujo y la continuidad del diseño.

 

 

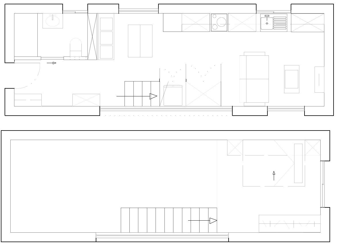
VIVIENDA MÍNIMA

«La

Belleza

De

Lo

Justo»

Funcionalidad, Estética y Diseño 

En 30m2

Este proyecto explora el diseño de una vivienda mínima de 30 m², aplicando los criterios del PGOU de Granada. Se buscaban soluciones funcionales y creativas. El objetivo principal fue reflexionar sobre lo esencial en una casa y cómo optimizar el espacio desde la arquitectura y el interiorismo.